



VictoriaMeadowsVillage
VMV is a long-term care facility in Collingwood, Ontario. It integrates the historic 1890s Victoria Schoolhouse and is engineered for the occupant experience through healthy, beautiful, low-carbon, responsible design.
Explore ProjectSite
Understanding the existing urban fabric and natural environment to create a development that responds to its context and enhances the surrounding community.

Site Context

Massing

Site Plan
Floor Plans
Dementia-friendly space planning is designed to bring the outside world in, offering a gradient of privacy from vibrant shared amenities to quiet, personal retreats.

Level 1

Level 2
Sections
Skylights and strategic floor-plate openings draw daylight deep into the building, sharing natural light with first-floor suites and corridors. Light-toned finishes amplify reflectance to improve visual comfort and reduce reliance on artificial lighting.

East-West Section

North-South Section
Elevations
The facade draws from Collingwood’s character with red brick and wood cladding, preserving the site’s historic identity in a warm, contemporary care setting. Pitched roofs define the residential wings, while flat roofs serve amenity and service zones to reinforce hierarchy and simplify construction.

East Elevation

West Elevation

North Elevation

South Elevation
Assemblies + Environmental Impact
The enclosure exceeds code thermal performance and aligns with LBC imperatives using Declare-labeled, Red List–free assemblies and low-carbon insulation to cut operational loads with material transparency. LCA shows 125 kg CO₂e/m² (A1–A3), well below the Toronto Green Standard Tier 2 benchmark (250 kg CO₂e/m²), with concrete and interior finishes identified for further optimization.

Enclosure + Sustainability Overview

Assembly Details

Environmental Impact Analysis
Structural Systems
The structural system supports durability and LBC-aligned wellness through a cast-in-place concrete foundation and a glulam + CLT superstructure designed for efficient spans and exposed timber in key areas. FSC-certified, locally sourced wood and Declare-listed products were prioritized where possible to reduce embodied carbon and improve material transparency.

Structural Systems
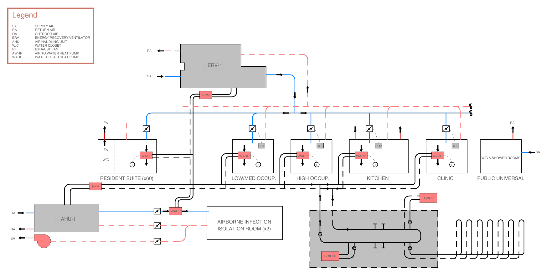
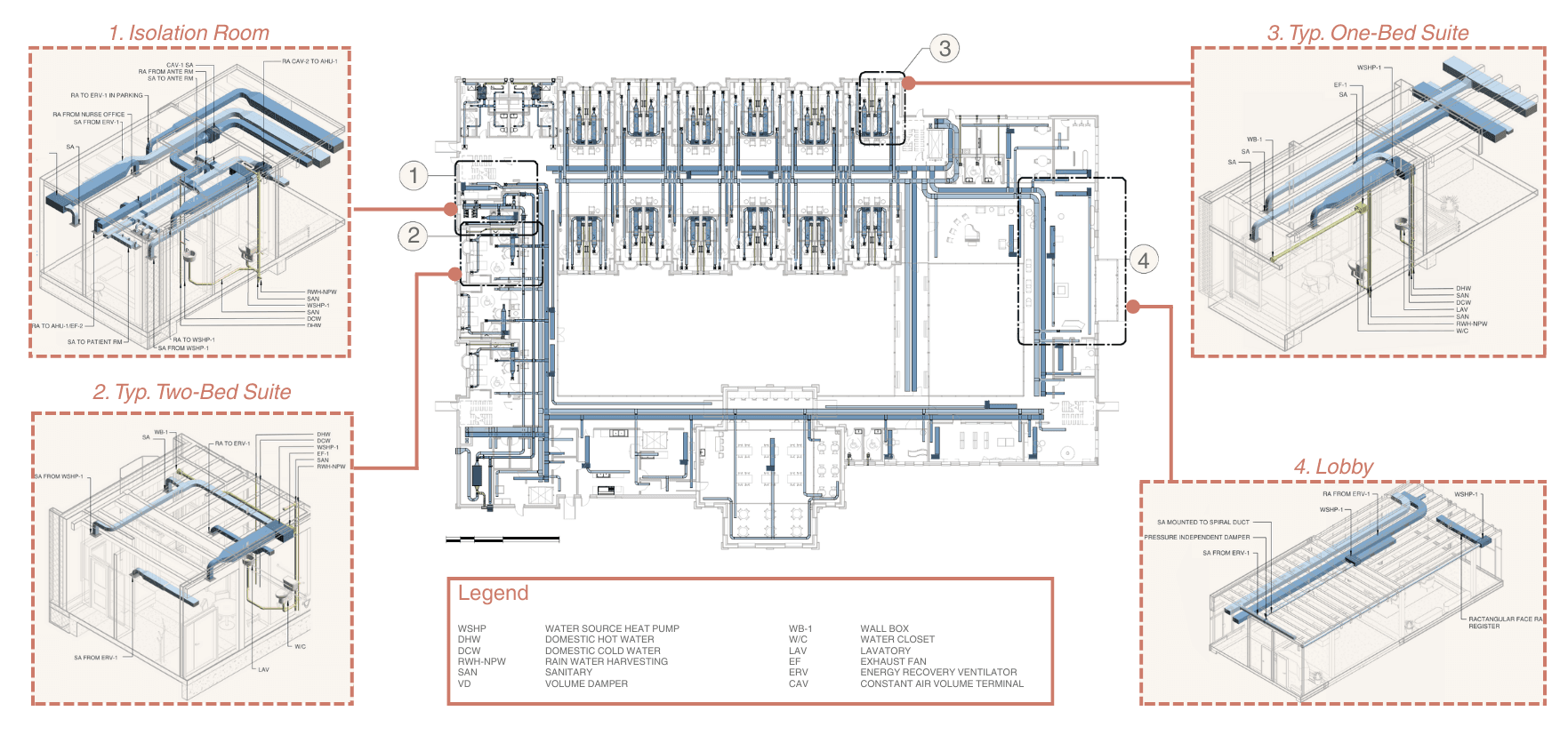
HVAC
The HVAC design supports LBC goals with efficient, resilient heating and cooling via a ground heat exchanger (GHX) with backup boiler, plus ERVs and demand-controlled ventilation to reduce energy use during partial occupancy. MERV-14/HEPA filtration and dedicated airborne infection isolation rooms enhance resident health, while the system remains adaptable for future renewable integration.

HVAC System Design

HVAC Details
Plumbing
The plumbing design supports resident comfort and sustainability through domestic hot water recirculation (DHWR) for near-instant hot water with minimal waste, and roof rainwater harvesting filtered for non-potable uses (toilets, laundry, irrigation) to reduce municipal demand. Fire suppression and municipal backup are integrated to maintain efficiency and resilience.

Plumbing Design
Solar
The 198.7 kW DC solar array uses 368 high-efficiency 540 W monocrystalline panels in a series-parallel layout for strong performance and shading tolerance. Rail-mounted racks follow pitched roofs, while ballasted racks on flat roofs minimize penetrations, producing over 217,000 kWh annually.

Solar Array Layout
Victoria Meadows Village represents a new paradigm in sustainable urban long term care — one that is engineered for community, environmental responsibility, and the occupant experience excellence.
Phase 2
The next chapter of Victoria Meadows Village is currently being developed. Phase 2 will expand upon the foundation established in Phase 1, introducing new residential units, enhanced community spaces, and additional sustainable features. Stay tuned for updates as we continue to shape this vision.